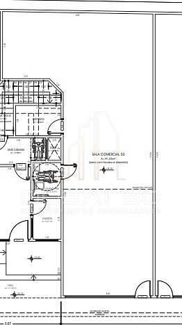
Sala Comercial ampla 94m² localizado no bairro Nações no coração de Balneário Camboriú. Dispõe de 1 lavabo PNE. Acabamento em porcelanato e varios pontos de energia.

Entre em contato e consulte um de nossos corretores.


Características do Imóvel

  • Piso Porcelanato
  • Infra para Ar Split
  • Banheiro Social

Características do Empreendimento

  • Acessibilidade para PNE

Balneário Camboriú - Nações

1 banheiro

Alto Padrão

94,00 m² de área privativa

94,00 m² de área total

Aluguel: R$ 7.100,00 (valor mensal)
Mais Informações via WhatsApp

Os preços, disponibilidades e condições de pagamento poderão ser alterados sem prévia comunicação.